La Consejería de Cultura y Patrimonio Histórico de la Junta de Andalucía ha adjudicado a la empresa constructora Díaz Cubero, compañía sevillana con más de 25 años de experiencia en todo tipo de proyectos, la construcción del nuevo Museo del Flamenco de Andalucía y Centro de Documentación del Flamenco (CADF) en Jerez. Una obra que se hará al fin realidad por un importe de 4,8 millones más IVA, y un plazo de ejecución de 23 meses. Esto significa que a la actuación urbanística sobre los inmuebles se añadiría la tematización del equipamiento cultural, por lo que éste no sería realidad hasta al menos 2024, fecha que ya ofreció hace unos meses la consejera Patricia del Pozo.
Lo importante, en todo caso, como resalta la adjudicataria en su web, es que una vez terminado, "se convertirá en un espacio único e inigualable en el mundo, siendo el punto de referencia para artistas, investigadores y aficionados a la cultura flamenca en general. Además, supondrá un enclave dentro de la estrategia de regeneración y revitalización del centro histórico de Jerez de la Frontera".
Más de 3.200 metros de superficie
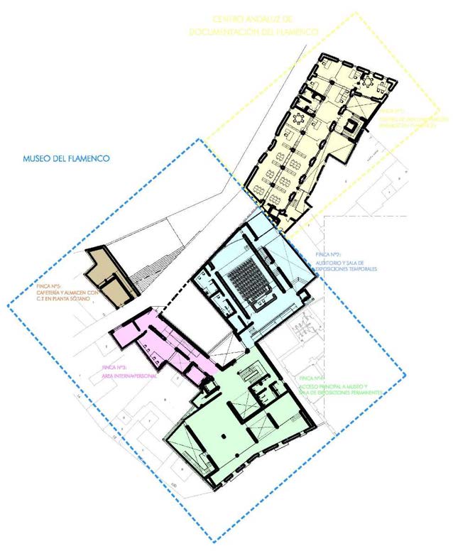
El Museo del Flamenco de Andalucía y el Centro Andaluz de Documentación del Flamenco (CADF), ambos espacios radicados en la Plaza Belén, centro histórico de Jere, se construirán sobre un espacio edificable conformado por un complejo conjunto de fincas y edificaciones. Por un lado, será objeto de una intervención de adaptación y reforma de un edificio existente y, por otro, de una obra de nueva construcción.
Tendrá una superficie de 3.292,95 metros cuadrados: 2.401,43 destinados al Museo y 851,52 al Centro Andaluz de Documentación, disponiendo de varios edificios y solares independientes que han sido cedidos por el Ayuntamiento de Jerez de la Frontera.
La entrada principal será por la calle Barranco y contará con varias salas expositivas dedicadas a la historia y personalidades del cante, del toque y del baile. En otras salas se explicará su relación con otras culturas como el arte de la pintura o el vino de jerez. Además, contará con un auditorio para albergar espectáculos, exhibiciones cinematográficas, presentaciones y conferencias, así como una cafetería y una tienda.
Edificio y actuaciones previstas
-
EDIFICIO DEL CENTRO ANDALUZ DE DOCUMENTACIÓN DEL FLAMENCO (CADF). La actuación a realizar será una rehabilitación con reforma y adaptación al nuevo uso. Para ello, será necesario dotarlo de escalera y ascensor, para comunicar sus dos plantas y cumplir con los requisitos de accesibilidad y evacuación.
-
EDIFICIO DE AUDITORIO POLIVALENTE Y SALAS DE EXPOSICIONES TEMPORALES DEL MUSEO DEL FLAMENCO. El nuevo edificio a construir tendrá un uso polivalente y versátil, en el que puedan realizarse proyecciones de audiovisuales, conferencias, conciertos, etc… La actuación a realizar consiste en la demolición completa para construir un nuevo edificio que cumpla con los requisitos funcionales y de usos necesarios.
-
EDIFICIO CENTRAL DEL MUSEO DEL FLAMENCO. Las salas de exposición permanentes se dedicarán a diversas exposiciones del patrimonio cultural del flamenco. El espacio debe favorecer la adecuada exhibición y garantizar la conservación y la seguridad de los bienes culturales que se expongan. Es fundamental que facilite a los visitantes la comprensión de los principales valores del Museo. Para poder construir el nuevo edificio, se han de demoler previamente las edificaciones existentes que se encuentran desde hace décadas en estado de ruina. La excepción será la fachada de calle Barranco, que se ha de conservar por su catalogación urbanística.
-
EDIFICIO DE SERVICIOS MUSEÍSTICOS Y ADMINISTRATIVOS DEL MUSEO. Sobre esta finca, actualmente en estado de solar, se organizará una parte del Museo en la que se ubicarán las dependencias de servicios museísticos complementarios, almacenes de fondos expositivos, talleres de restauración y administrativos. Entre otros, se utilizarán como espacios para la realización de tareas de restauración y acopio de bienes muebles y material museístico, además de las funciones de gestión y dirección del Museo, que estarán intercomunicados con el edificio Central y con el Auditorio, pero con el carácter de uso privado, no público.
-
EDIFICIO DEL BAR-CAFETERÍA DEL MUSEO. Sobre esta finca, actualmente en estado de solar, se construirá un edificio de dos plantas.
Las fincas del futuro Museo.
Las fincas del Museo
Implantadas sobre cuatro fincas distintas, la idea es presentar una imagen unitaria configurada por dos unidades de uso independientes y sectorizadas, pero comunicadas e interrelacionadas entre sí a través de la planta de nivel +1: por un lado el Museo del Flamenco de Andalucía, que se implantará y conformará sobre las fincas nº 1.2, 3 y 4; por otro, el Centro Andaluz de Documentación del Flamenco (CADF), que se implantará sobre la edificación existente en la finca nº1.1 de las Antiguas Carnicerías Viejas (Zoco de Artesanías), reformada, adaptada y rehabilitada.
Sobre la finca nº 2 se ha proyectado la edificación que constituirá el núcleo central y el espacio articulador del Museo, como centro de gravedad funcional y distribuidor de enlace entre los distintos usos, niveles y recorridos de este complejo edificio.
"Ha sido una gran noticia para nosotros ser los adjudicatarios de una obra tan importante e innovadora. Además, su localización, en una ciudad como Jerez de la Frontera, en nuestro querido Sur y muy cerca de nuestras instalaciones", aseguran desde el equipo de Díaz Cubero, añadiendo que, "una vez más, el equipo de estudios y licitaciones destaca, por un lado, en la puntuación técnica, siendo la más alta de las empresas que se han presentado, y por otro, demostrando el gran trabajo conjunto que realizan las profesionales que se encuentran al frente del mismo". "Es un proyecto muy importante que tenemos muchas ganas de empezar y sobre el que os iremos contando los avances", han zanjado.


