La plataforma 'Jerez en Bici' solicita al Ayuntamiento que modifique el paso del carril bici por Divina Pastora y Ponce y lo sustituya por Porvera en forma de ciclo-calle de dobe circulación ciclista. La idea, que no aumentaría el presupuesto ya aprobado, supondría eliminar los aparcamientos del margen izquierdo de la circulación y que los del margen derecho pasaran a ser en batería en lugar de en línea.
El carril bici podría cruzar la calle Porvera. Esa es, al menos, la propuesta que tiene sobre la mesa el Ayuntamiento de Jerez de la plataforma ‘Jerez en bici’. Tras la última Mesa de Movilidad celebrada la pasada semana, el colectivo entregó al teniente de alcaldesa de Movilidad, José Antonio Díaz, un documento en el que le proponían ésta y otras propuestas que modificarían algunos puntos del recorrido por el centro histórico sin que esto supusiera un incremento del presupuesto destinado a la construcción del vial ciclista, que como hay que recordar, financia la Unión Europea.
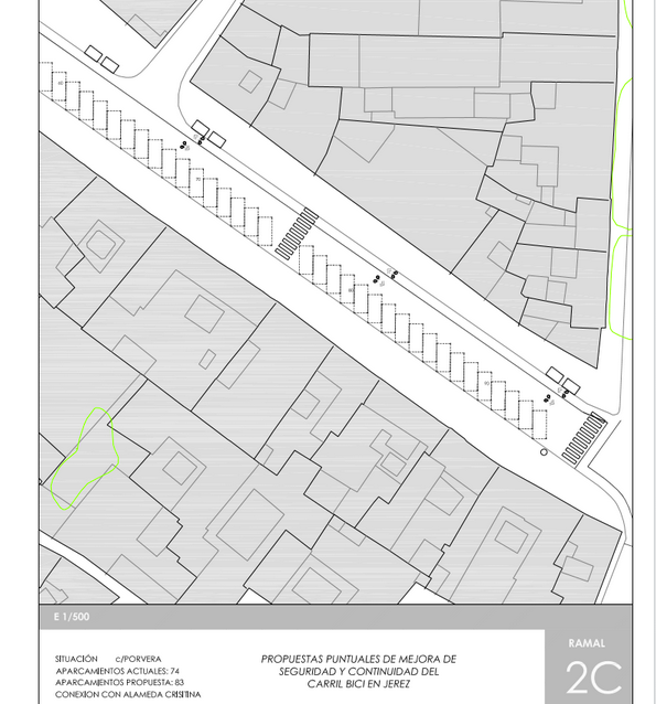
La idea de ‘Jerez en Bici’ es eliminar el ramal actualmente proyectado en Divina Pastora y calle Ponce para que el mismo pase directamente por Porvera, por lo que conectaría con el actualmente finaliza en el Mamelón y con el que está proyectado en calle Ancha. Esto supondría para el colectivo un trazado más lógico y sin tantos rodeos para llegar al centro que el que está proyectado en la actualidad y significaría que el espacio destinado a las bicicletas en sentido ascendente hacia La Victoria pasara justo por la actual zona naranja. De este modo quedaría un sólo carril de tres metros de ancho para el tráfico rodado y las plazas de aparcamiento pasarían al lado derecho en el sentido de la circulación, proponiéndose además que sean en batería en lugar de en línea. Así, calculan que de las actuales 74 plazas que tiene actualmente Porvera se ganarían nueve más hasta alcanzar las 83. En lo relativo al carril descendente hacia Alameda Cristina, éste compartiría espacio con los vehículos a motor, y además habría que trasladar al margen izquierdo en sentido del tráfico los contenedores de basura.
Hay que señalar que el carril bici, en principio, no sería tal, sino una ciclo-calle de doble sentido ciclista, lo que además limitaría la velocidad a 30 kilómetros por hora. Esto supondría una inversión menor que el carril bici, ya que lo que se haría es limitar un espacio para las bicicletas sin necesidad de obra alguna más allá de pintar los carriles para delimitarlos del espacio dirigido a los vehículos. Así y todo, de aprobarse esta modificación, el objetivo final y a más largo plazo sería convertir este trazado en carril bici una vez que hubiera un nuevo presupuesto destinado al trazado ciclista. Desde 'Jerez en Bici' considerarían esta modificación un logro ya que piensan que “sería decirle a la gente que algo verdaderamente está cambiando en la ciudad”.
Pero el paso por la Porvera no es la única propuesta que piden desde esta plataforma ciudadana. Con el presupuesto que se ahorraría eliminando el carril en Divina Pastora y Ponce proponen que el mismo pase por Muro, eliminando la idea de ciclo-calles en Merced y en Cristal, ya que la consideran dos vías peligrosas para que la compartan bicicletas y coches. Además solicitan que se recupere la idea original de que el carril pase por las calles Balderrama y Nube, mucho más seguras.
Por último, Jerez en Bici también pide que el trazado ciclista pase por las calles Porvenir y Corredera sustituyendo las ciclo-calles de Pedro Alonso y Caballeros. De esta manera se conectaría de una manera más lógica el centro histórico con las estaciones de ferrocarril y autobuses y además se evitaría compartir la calzada con el denso tráfico de autobuses urbanos que recorren la plaza de las Angustias. Este tramo obligaría a eliminar diez plazas de aparcamiento.
Estas propuestas son apoyadas por Ganemos Jerez e Izquierda Unida. De hecho, desde la formación que lidera Raúl Ruiz-Berdejo consideran que estos cambios que se demandan “no supondrían un incremento del presupuesto y permitirían mejorar sustancialmente la red”. Por este motivo, solicitarán al gobierno que "estudie" la propuesta y “trate de defender ante la Junta de Andalucía estas modificaciones de última hora”. Además, la formación confía que “en el supuesto de que la administración autonómica no viese factible introducir las citadas modificaciones, se comprometa a ejecutar paulatinamente esas mejoras, por sí mismo, durante la presente legislatura”.


